Custom End-of-Hook ID Gripper with Adjustable Control Heights

The client was seeking a more ergonomic solution for operators to place piston heads on an assembly.

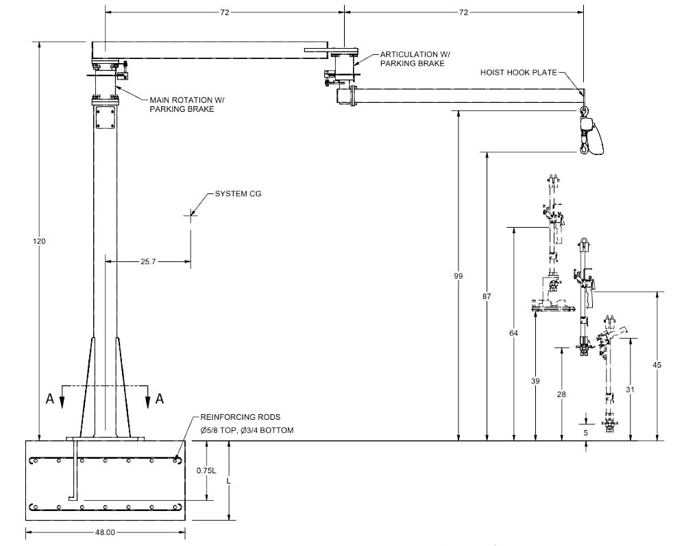
GCI designed a custom end effector mounted on a jib crane with adjustable height control handles. The adjustable height of the controls enables the operator to pick piston heads out of a shipping crate while maintaining a good ergonomic position. The end effector passes through the inner diameter of a piston head and then two swing arms capture the part from the bottom. The operator utilizes intuitive thumb levers to release the part on the assembly safely.

Project Details

Maximum Capacity:

20 LBS

Product Handling:

Are you working on a similar project? Do you have questions?

Related Material Handling & Torque Reaction Solutions

Engine lift manipulator

Simple Snowmobile Engine Lift Assist

Rollover assembly stand

Rollover Assembly Stand for Generator Assembly

Smart industrial manipulator arm

Smart Manipulator Arm to Help Errorproof an Assembly Process

Operator at the controls of an industrial lift assist manipulator

Overhead-Mounted Lift Assist Tube for Motor Installation

Interested In Our Solutions?

Scroll to Top